top of page
Incarichi Privati

Ristrutturazione e restauro ad uso oratorio e residenza sacerdoti di un complesso architettonico del XII sec., Piadena (CR)
Progetto di ristrutturazione e restauro ad uso oratorio e residenza sacerdoti di un complesso architettonico del XII sec., Piadena (CR) 1999-2008.
In collaborazione con l’architetto Filippo Guarneri.

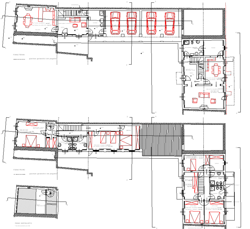
Ristrutturazione ad uso residenziale di ex annesso rustico a Monticelli d’Oglio, Verolavecchia (BS)
Progetto di ristrutturazione (con P.R.) ad uso residenziale di ex annesso rustico situato nel complesso monumentale di Monticelli d’Oglio (sec. XVII), Verolavecchia (BS) 1998-2004
In collaborazione con l’architetto Antonella Salerno.

Sede della nuova filiale bancaria della Banca di Credito Cooperativo di Verolavecchia, a Verolanuova (BS)
Progetto di ristrutturazione (con P. R.) di edificio nel centro storico, sede della nuova filiale bancaria della Banca di Credito Cooperativo di Verolavecchia, via Garibaldi, Verolanuova (BS)
1996-1999
Progetto selezionato e segnalato all’interno della rassegna “nuove architetture bresciane”, maggio - giugno 2001.
Con : ing. Enrico Bersini, ing. Umberto Bianchini per la parte strutturale e impiantistica
bottom of page
















































